Дизайн в Караганде
Планировочное решение квартир, домов, нежилых помещение, дизайнер в Караганде
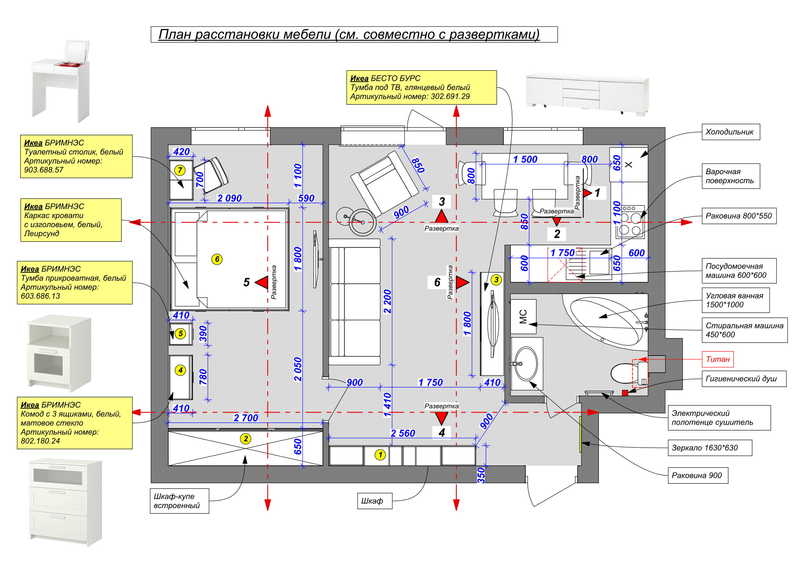
Планировочное решение – это план стен и перегородок с расстановкой мебели и оборудования (оборудование кухни, сантехника и т. д.) — основа дизайна будущего интерьера, и от того насколько профессионально и качественно сделан этот план, будет зависеть комфорт и удобство при проживании в данном интерьере.
Наши специалисты обладают профильным дизайнерским образованием и прекрасно владеют всеми нормами и правилами эргономики, что позволяет добиваться идеально выверенных планировочных решений.
Мы разрабатываем архитектурно-планировочные решения, учитывая ваши жизненные и рабочие сценарии.
Кому полезна эта услуга?
• Тем, кому важно до осуществления ремонта или до покупки квартиры/дома рассмотреть возможные варианты планировочного решения.
• Владельцам/арендаторам офисных помещений, магазинов, кафе, ресторанов, т. к. немаловажно определить наиболее оптимальное зонирование и расстановку мебели и оборудования для повышения эффективности бизнеса.
Что вы получите в результате?
• Обмерный план с указанием всех технических особенностей помещения;
• Несколько вариантов планировочного решения с расстановкой мебели, оборудования, сантехники;
• План демонтируемых перегородок;
• План вновь возводимых конструкций
Информация о компании, которая разместила объявление:
Действия с объявлением #1671827
Поделитесь с друзьями и знакомыми
Поделитесь объявлением Планировочное решение квартир, домов, нежилых помещение, дизайнер с друзьями, знакомыми, потенциальными клиентами, используйте для этого социальные сети, мессенджеры. Это придаст объявлению популярности и эффект многократно повысится.
Сохраните или сообщите о нарушении
Студия архитектуры и дизайна Архивольт
- Зарегистрирован: 16.04.2012
- Активность: 29.03.2022
- Караганда
- г. Караганда, ул. Ерубаева 20, офис 319
Советы по безопасности
- Познакомьтесь с продавцом в публичном месте
- Проверьте товар перед покупкой
- Оплачивайте только после того как убедитесь, что товар соответствует описанию и вашим требованиям
- Желательно провести сделку при свидетелях
- Познайомтеся з продавцем в публічному місці
- Перевірте товар перед покупкою
- Сплачуйте лише після того як переконаєтеся, що товар відповідає опису і вашим вимогам
- Бажано провести операцію при свідках
Другие объявления от
Студия архитектуры и дизайна Архивольт
QR-код страницы
Поделитесь QR-кодом в социальных сетях, чатах, мессенджерах чтобы ваши знакомые, потенциальные клиенты открыли ваше объявление на своих смартфонах.
Казахстан
Украина
Узбекистан
Молдавия